3 Bedrooms
2 Baths
1685 Sq. Ft.
28x68
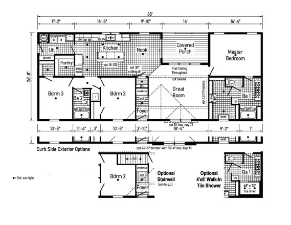
Des Moines 3 Bedroom, 2 Bathroom with Porch
The Details
This beautifully designed home offers a smart, open layout with a strong connection between indoor and outdoor living—highlighted by the spacious covered porch that serves as a true extension of the main living area. Accessible directly from the dining nook, the covered porch is ideal for morning coffee, outdoor dining, or relaxing evenings, all while being protected from the elements.
Inside, the Great Room features a wide, open feel with a flat ceiling throughout and optional decorative beams, creating a warm and inviting space for everyday living and entertaining. The Great Room flows effortlessly into the centrally located kitchen and dining nook, making this layout both functional and welcoming.
The kitchen is a true standout, featuring a large island, abundant cabinetry, and a hidden walk-in pantry that provides exceptional storage while keeping the main kitchen area clean and uncluttered. The pantry conveniently connects to the utility room, adding efficiency and ease to daily routines.
The private primary bedroom is located on one side of the home and includes a spacious ensuite bath with linen storage and optional upgrades such as a garden tub or walk-in tiled shower. Two additional bedrooms are positioned on the opposite side of the home and share a well-appointed full bath, offering flexibility for family, guests, or a home office.
Additional features include a welcoming foyer entry, a dedicated utility room with built-in bench space, and multiple optional design enhancements such as box bays, dormers, and an optional stairwell for basement access—allowing this home to be customized to fit both your lifestyle and your lot.
Property Features
Interested?
Call NowWe are dedicated to providing our customers with education on the home buying process, streamlined turnkey construction, and accommodating customer service through well informed sales consultants and contractors that understand today's manufactured homes.



























































