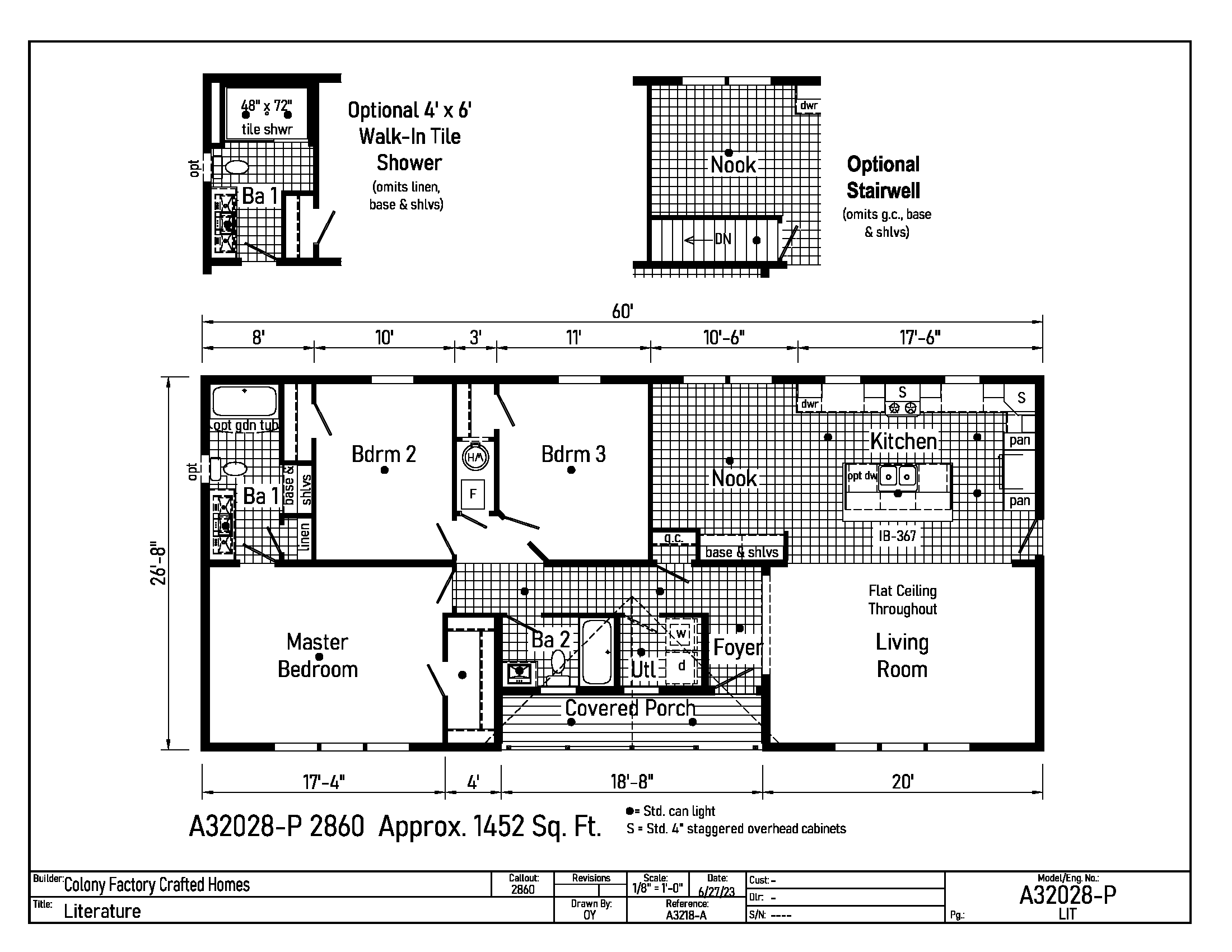
3 Bedrooms
2 Baths
1452 Sq. Ft.
60' x 26' 8"
Greystone Multi Section
The Details
Features
Note: Floorplan may be altered based on building code
- Drywall
- 40# Roof Load
- Ice Guard
- 3/12 Roof Pitch
- 90 MPH Wind Zone C
- 2x10 Floor Joist 16” O.C.
- 2x4 Interior Walls
- Additional Exterior Receptacle
- (1) Exterior Faucet
- R-38 Ceiling Insulation
- No Floor Insulation
- Perimeter Heat
- Water Shut Offs – Where Available
- 200 AMP Panel Box
- Hi-Efficiency Furnace
- Premium Cabinetry
- Premium Moulding Package
- Structured Flow Faucets
- Drawer over Door Cabinet Construction
- Phone Jack
Property Features
INTERIOR
- Flat Ceiling Throughout
- Smooth Ceiling w/ Cove Moulding
- 8’ Sidewall Height
- Primed Smooth Drywall Throughout
- LED Flush Mount Ceiling Lights
- Pre-Hung Door Jambs
- Mortise Hinges
- Lever Interior Passage Sets
- Floor Mount Door Stops
- Smoke Detectors With Battery Back-Up
- Wire Shelving in Guest Closet
- 2” Mini Blinds
- Designer Window Treatments
- White 2-Panel Passage Doors
- Craftsman Moulding Package
EXTERIOR
- Gatsby Light - Front & Rear Door
- GFI-Protected Exterior Receptacles ( Front & Back)
- Vinyl Dutch Lap Siding
- OSB with Wind Wrap
- 2/12 Roof Pitch with 10” Eaves
- 12” Gable End Overhang
- Ridgevent Roof Ventilation System
- 38x82 Fiberglass 6-Panel Front Door
- 38x82 Fiberglass 6-Panel Rear Door
- Schlage Exterior Locksets Keyed Alike
- Vinyl Insulated Windows w/Grids
- Window Lineals on Front Door Side
CONSTRUCTION
- 2x6 Transverse Floor, 16” centers**
- 2x6 Exterior Walls on 16” Centers**
- ¾” T&G OSB Floor Decking
- 30# Roof Load
- Recessed Frame Design
- **NOTE: Spacing for Framing Members may vary due to Design Requirements
KITCHEN
- Stainless Steel SxS Refrigerator
- Stainless Steel Self Cleaning Range
- Stainless Steel Dishwasher
- Galley Sink w/ Coil Spring Faucet
- Full Ceramic Backsplash
- Refrigerator Surround
- 1 USB Receptacle
BATHS
- Curved Front Garden Tub/Shower Bath 2
- 4x6 Ceramic Walk-in Shower - Bath 1
- 1.6 Gallon Per Flush Elongated Toilets
- China Stool, Tank and Lid
- Square China Lav Sinks
- Lighted Vent Fan in Each Bath
- Structured Flow Brushed Nickel Faucets
- Anti-Scald Faucets in Tub/Shower
- Shower Drain with Removable Strainer
- Double Lav Sinks in Master Bath
CABINETRY
- Evermore Custom Cabinetry
- (KCMA Certified)
- Premium Cabinetry - Stained Hardwood
- Mission Style Cabinet Doors
- Cabinet Pulls
- Contemporary Moulding on Cabinets
- Lined Overhead Cabinets
- 42” Height Overhead Cabinets
- Drawer over Door Base Cabinets
- Concealed Cabinet Hinges
- Soft Close Drawers
- Dovetail Drawers
- Soft Close Cabinet Doors
- Base and Center Shelves in Base Cabinets
- Base Shelf in Vanities
- 36” High Bath Vanities
UTILITIES
- Plumbed and Wired for Washer
- Vented and Wired for Dryer
- Wire Shelf over W/D Hookups
- 100 AMP Electrical Service w/Extended Panel
- 40 Gallon Electric Water Heater with Pan
- Hi-Efficiency Gas Furnace
- White 2-Panel Furnace Door w/Grill
- Perimeter Heating System
- Air Exchanger System for Furnace
- Aluminum Heat Ducts
- In-Floor Cross-Over Heating System
- Copper Wiring Throughout
- Main Water Line Shut-Off Valve
- Programmable Thermostat
- Water Shut-Off Valves
- Exterior Water Faucet (Front & Back)
FLOORING
- Choice of Various Styles of Textured
- Carpet:
- -Standard Shake It Up Carpet
- -Upgrade Styles Available
- Rebond Carpet Pad with Tackstrip
- Carpet Installation
- Shaw Fortress Vinyl Flooring per print
BEDROOMS
- LED Flush Mount Lights
- Egress Window Each Bedroom
- Wire Shelving in Wardrobes
- Switched LED Light in All Walk-In Closets
INSULATION
- R-22 Fiberglass in Floor
- R-19 Fiberglass in Walls
- R-31 Avg. Blown in Ceiling
Interested?
Call NowWe are dedicated to providing our customers with education on the home buying process, streamlined turnkey construction, and accommodating customer service through well informed sales consultants and contractors that understand today's manufactured homes.





















