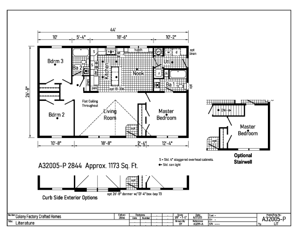
3 Bedrooms
2 Baths
1173 Sq. Ft.
44' x 26' 8"
London- Multi Section
The Details
Property Features
INTERIOR
EXTERIOR
CONSTRUCTION
KITCHEN
BATHS
CABINETRY
UTILITIES
FLOORING
BEDROOMS
- LED Flush Mount Lights
- Egress Window Each Bedroom
- Wire Shelving in Wardrobes
- Switched LED Light in All Walk-In Closets
INSULATION
Interested?
Call NowWe are dedicated to providing our customers with education on the home buying process, streamlined turnkey construction, and accommodating customer service through well informed sales consultants and contractors that understand today's manufactured homes.













